
4 Beds
3 Baths
1,462 SqFt
4 Beds
3 Baths
1,462 SqFt
Key Details
Property Type Single Family Home
Sub Type Single Family
Listing Status Active
Purchase Type For Sale
Square Footage 1,462 sqft
Price per Sqft $956
MLS Listing ID 497252
Style Duplex
Bedrooms 4
Full Baths 1
Half Baths 1
Year Built 1920
Annual Tax Amount $5,689
Property Sub-Type Single Family
Property Description
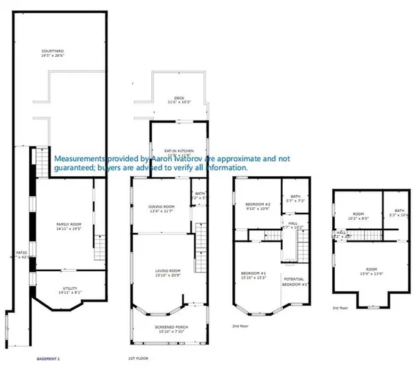
Potential: 5 Bedroom Duplex potential or 2 to 3 family conversion, Discuss with your Architect.
Size: 1st floor 16w x 51L and 2nd floor 16w x 33L (See floor plans attached)
Rare opportunity to own a fully detached single-family home.
Perfect for both homeowners and investors, this move-in-ready property combines charm, comfort, and great potential for future growth.
Conveniently located near shopping, dining, schools, and public transportation, this home offers the best of city living in a great neighborhood setting.
**** PROPERTY HIGHLIGHTS:
• Fully detached 1-family home spanning four levels (Potential to convert to 2 to 3 family, speak to your Architect)
• Beautiful hardwood floors and numerous upgrades throughout
• Open-concept layout with abundant natural light
• Huge eat-in kitchen with access to a decked backyard—perfect for entertaining
• 3 bathrooms total (1 full, 1 half, and 1 on attic level)
• Being used as 4 Bedroom House with potential of being used as a 5 Bedroom house.
(Potential for a 3-bedroom layout on the second floor, plus 2 additional rooms on the attic level)
Discuss with your Architect for approval.
**** LAYOUT OVERVIEW:
• 4th Level (Attic): 2 rooms + bathroom
• 3rd Level: 3 potential bedrooms + bathroom
• 2nd Level (Main Floor): Foyer, spacious living room, dining room, large eat-in kitchen with door to backyard, and half bathroom
• 1st Level (Basement): Finished basement with utility room and separate rear entrance
**** Please note: this home does not have a driveway or garage, but street parking, metered parking, and nearby garages are available.
**** Don't miss this fantastic opportunity to own a beautiful, detached home in one of Brooklyn's most sought-after neighborhoods.
****Call today for floor plans or to schedule a private showing!
Location
State NY
County Kings (brooklyn)
Area Flatbush
Zoning R5
Rooms
Basement Finished, Full, Other
Interior
Hot Water Gas, Other
Heating Gas, Other
Flooring Hardwood, Laminate, Tile, Other
Heat Source Gas, Other
Exterior
Exterior Feature Aluminum Siding
Roof Type Shingle,Other
Handicap Access Unknown
Building
Foundation Poured Concrete
Others
Energy Description Gas,Other
Financing 1031 Exchange,Bank Mortgage,Cash
Nearby Locations

"My job is to find and attract mastery-based agents to the office, protect the culture, and make sure everyone is happy! "






